Cisowa Aleja – etap 2 jest idealnym miejscem do życia dla osób ceniących sobie prywatność, bezpieczeństwo, spokój oraz relaks blisko natury. W sąsiedztwie inwestycji znajdują się liczne ścieżki rowerowe, łąki, parki i stawy. Blisko również do wielu przydatnych na co dzień lokalizacji: marketów, punktów usługowych, stacji paliw, przychodni czy placówek edukacyjnych.
2 etap Cisowej Alei to kameralne osiedle 28 domów w zabudowie bliźniaczej i szeregowej, położone w prestiżowej, zielonej dzielnicy Kukułek w Sosnowcu. Architektura inwestycji czerpie z nowoczesnego designu skandynawskiego: proste bryły, jasne elewacje, grafitowe dachy i naturalne drewno tworzą elegancką, ponadczasową kompozycję.
Rozwiń ∨
Osiedle jest zamknięte i w pełni ogrodzone, z czytelnym układem alejek oraz starannie zaprojektowaną zielenią w nordyckim stylu. Każdy dom posiada 2 lub 3 prywatne miejsca parkingowe oraz możliwość montażu zadaszonej wiaty. Do domów przylegają prywatne ogrody z tarasami, które – dzięki korzystnej ekspozycji – są jasnym przedłużeniem strefy dziennej. Zwiń ∧
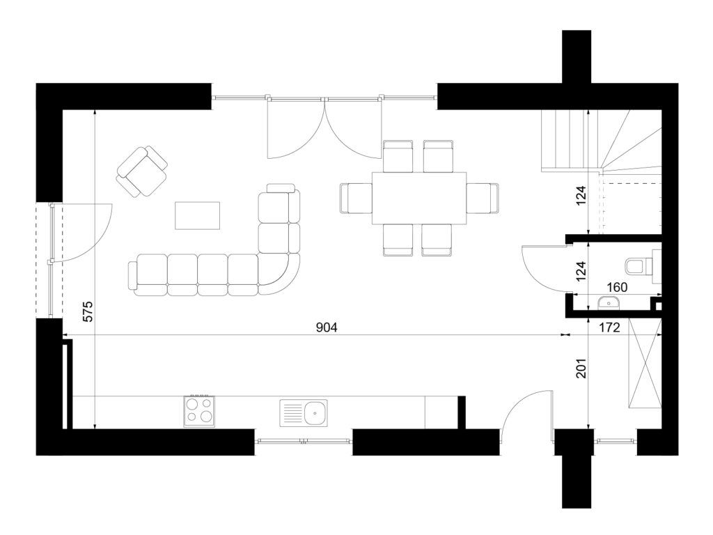
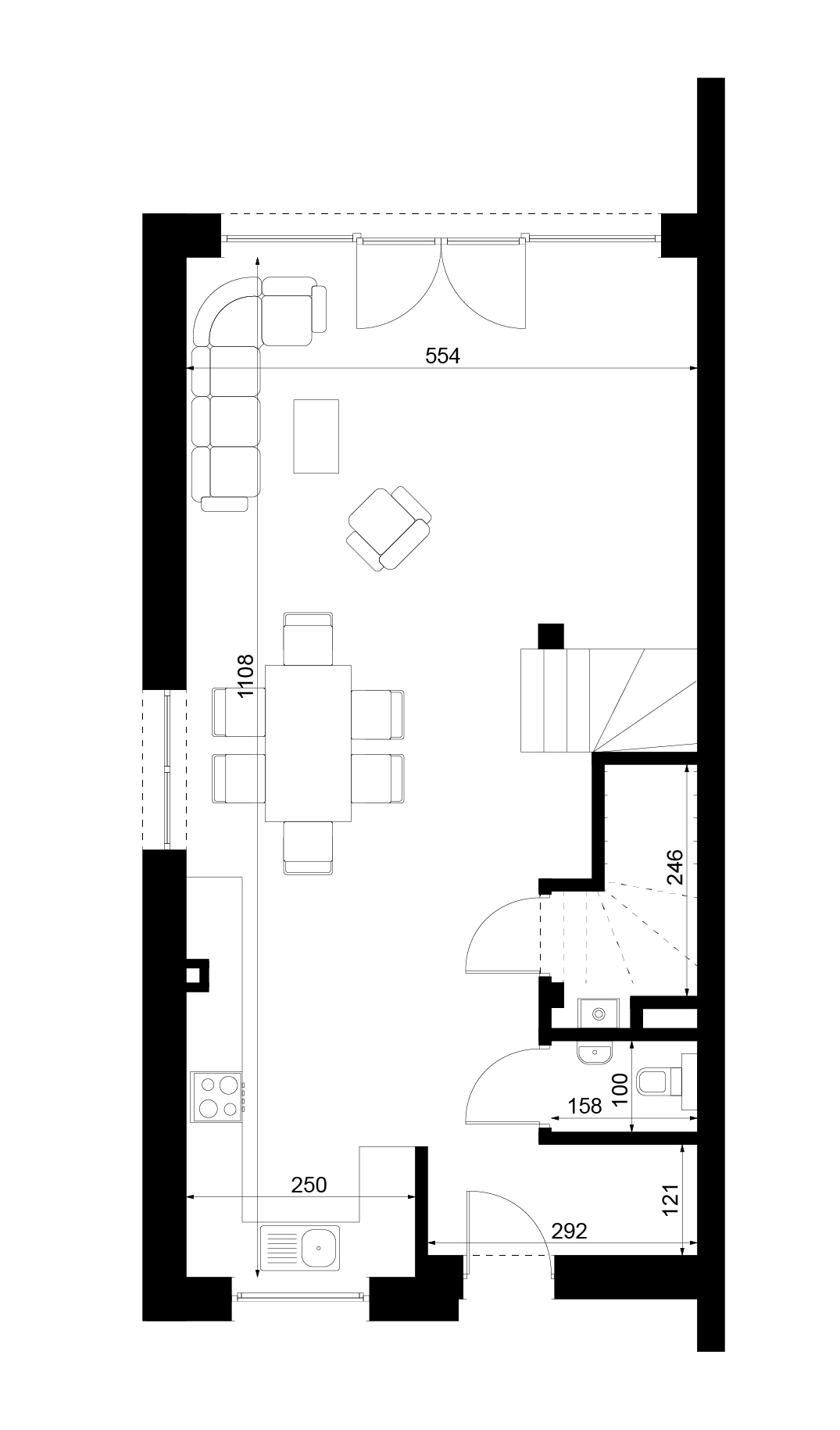
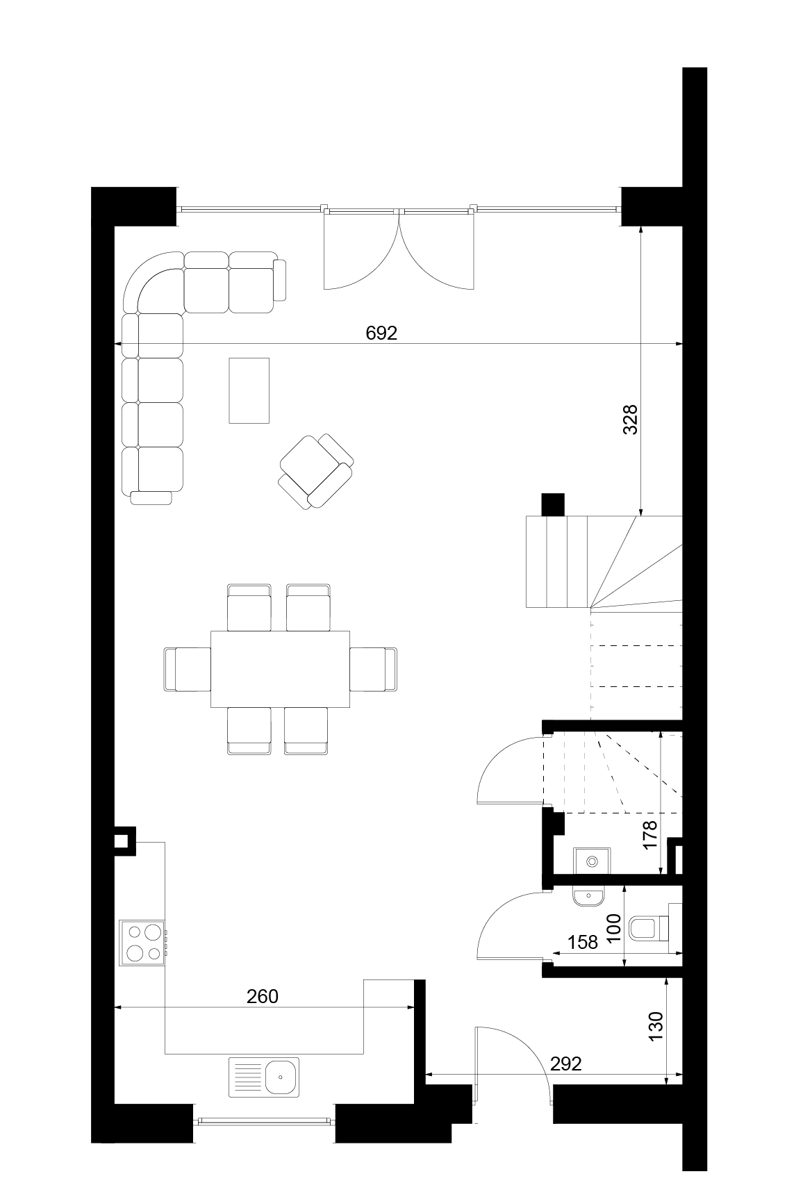
Domy dostępne są w wariantach 4- lub 5-pokojowych, z dodatkowym poddaszem (o powierzchni ok. 30 m²), które możesz zaaranżować jako gabinet, domowe centrum rozrywki lub przestrzeń do przechowywania. Wnętrza zaprojektowano tak, aby były funkcjonalne, jasne i łatwe do urządzenia. Parter tworzy otwarta strefa dzienna z dużymi przeszkleniami i wyjściem na ogród. Znajdziesz tu:
– przestronny salon z częścią jadalną i kuchnią,
– praktyczne pomieszczenie gospodarcze,
– wiatrołap oraz WC.
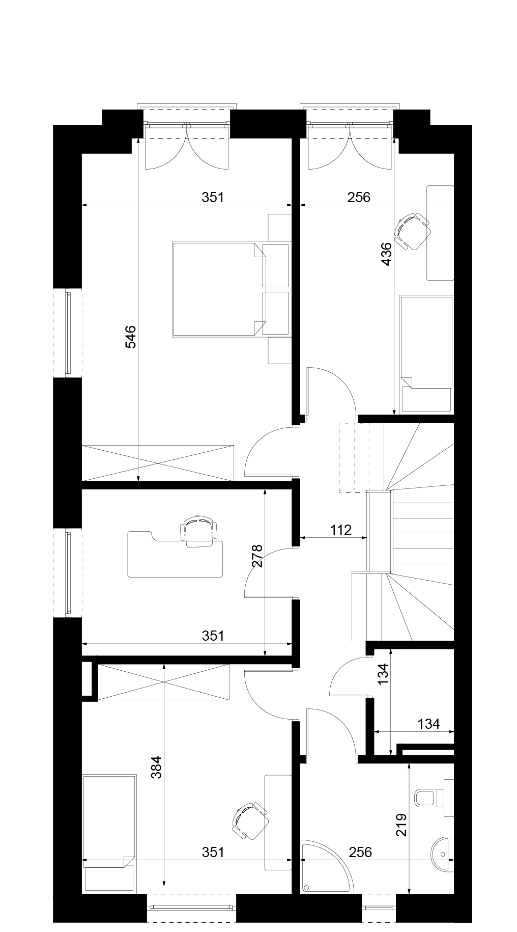
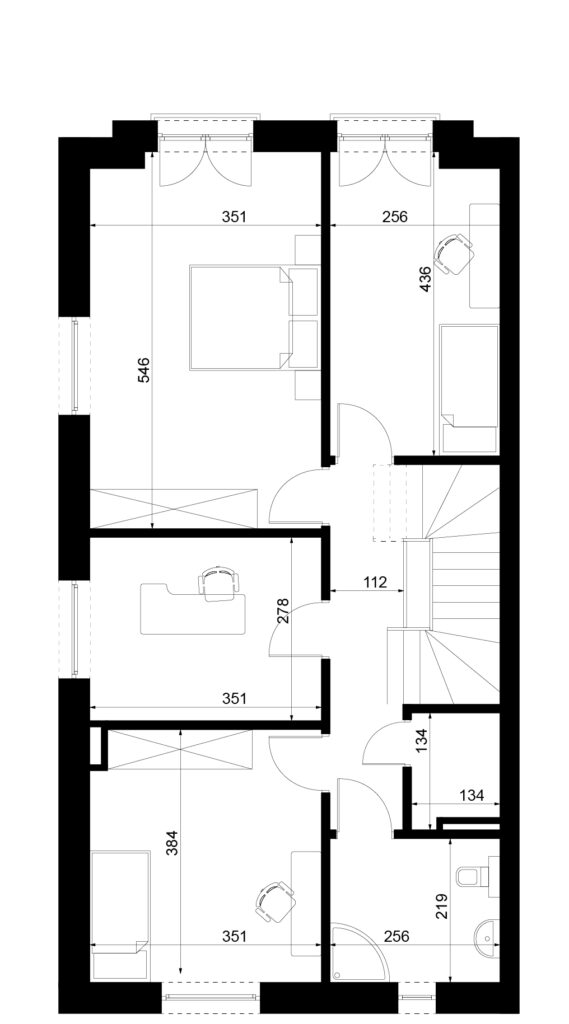
Piętro to prywatna część domowa, na którą składają się:
– trzy pełnowymiarowe sypialnie oraz dodatkowy gabinet lub czwarta sypialnia,
– dwie łazienki*,
– garderoba i wygodna pralnia*.
*Rozkład pomieszczeń różni się w zależności od wariantu. Układ wnętrz możemy dostosować do Twoich potrzeb.
Domy powstają w oparciu o nowoczesne technologie, które podnoszą komfort życia i pozwalają ograniczać koszty eksploatacji. Budynki są przygotowane pod montaż fotowoltaiki, rekuperacji oraz systemów smart home. W standardzie mają ogrzewanie podłogowe. Wnętrza są doświetlone przez duże, energooszczędne okna, które zapewniają ponadprzeciętne nasłonecznienie przez cały dzień. Zadbaliśmy również o wyciszenie pomieszczeń poprzez zastosowanie pustaków akustycznych między domami.
Cisowa Aleja – etap 2 znajduje się w Sosnowcu przy ul. Klimontowskiej, w prestiżowej dzielnicy Kukułek. Lokalizacja ta gwarantuje bardzo wygodny dostęp do pełnej infrastruktury dużych miast. Do centrum Sosnowca możesz dotrzeć samochodem w mniej niż 10 min (4 km), do Katowic – 20 min (12 km), a do Dąbrowy Górniczej i Jaworzna – 15 min (7 km). W odległości krótkiego spaceru znajdują się również przystanki autobusowe i tramwajowe.
| Nr.Numer | Typ | PtPiętro | Pok.Pokoje | Pow..Pow. | DziałkaPow. działki | ExtraBalkon/Taras | BudynekBudynek | DostępnośćDostępność | Cena | Plan | |
|---|---|---|---|---|---|---|---|---|---|---|---|
| 1 | 1 | 0,1 | 4 | 127,00m2 | 290,00m2 | Ogród | 1 | Dostępne | NR:Nr:1 Typ: 1 Piętro: 0,1 Pokoje: 4 Pow.:Pow.: 127,00m2 Działka:290,00m2 Budynek: 1 Dostępne | ||
| 1a | A | 0,1 | 4 | 118,85m2 | 311,00m2 | Ogród | 1 | Sprzedane | NR:Nr:1a Typ: A Piętro: 0,1 Pokoje: 4 Pow.:Pow.: 118,85m2 Działka:311,00m2 Budynek: 1 Sprzedane | ||
| 1b | B | 1 | 4 | 118,85m2 | 231,00m2 | Ogród | 1 | Sprzedane | NR:Nr:1b Typ: B Piętro: 1 Pokoje: 4 Pow.:Pow.: 118,85m2 Działka:231,00m2 Budynek: 1 Sprzedane | ||
| 2 | 1 | 0,1 | 4 | 127,00m2 | 218,00m2 | Ogród | 2 | Dostępne | NR:Nr:2 Typ: 1 Piętro: 0,1 Pokoje: 4 Pow.:Pow.: 127,00m2 Działka:218,00m2 Budynek: 2 Dostępne | ||
| 2a | A | 0,1 | 4 | 118,85m2 | 287,00m2 | Ogród | 2 | Sprzedane | NR:Nr:2a Typ: A Piętro: 0,1 Pokoje: 4 Pow.:Pow.: 118,85m2 Działka:287,00m2 Budynek: 2 Sprzedane | ||
| 2b | B | 1 | 4 | 118,85m2 | 236,00m2 | Ogród | 2 | Sprzedane | NR:Nr:2b Typ: B Piętro: 1 Pokoje: 4 Pow.:Pow.: 118,85m2 Działka:236,00m2 Budynek: 2 Sprzedane | ||
| 3 | 1 | 0,1 | 4 | 127,00m2 | 217,00m2 | Ogród | 3 | Dostępne | NR:Nr:3 Typ: 1 Piętro: 0,1 Pokoje: 4 Pow.:Pow.: 127,00m2 Działka:217,00m2 Budynek: 3 Dostępne | ||
| 3a | A | 0,1 | 4 | 118,85m2 | 279,00m2 | Brak | 3 | Sprzedane | NR:Nr:3a Typ: A Piętro: 0,1 Pokoje: 4 Pow.:Pow.: 118,85m2 Działka:279,00m2 Budynek: 3 Sprzedane | ||
| 3b | B | 0,1 | 4 | 118,85m2 | 227,00m2 | Ogród | 3 | Sprzedane | NR:Nr:3b Typ: B Piętro: 0,1 Pokoje: 4 Pow.:Pow.: 118,85m2 Działka:227,00m2 Budynek: 3 Sprzedane | ||
| 4 | 1 | 0,1 | 4 | 127,00m2 | 283,00m2 | Ogród | 4 | Rezerwacja | NR:Nr:4 Typ: 1 Piętro: 0,1 Pokoje: 4 Pow.:Pow.: 127,00m2 Działka:283,00m2 Budynek: 4 Rezerwacja | ||
| 4a | A | 0,1 | 4 | 118,85m2 | 354,00m2 | Brak | 4 | Sprzedane | NR:Nr:4a Typ: A Piętro: 0,1 Pokoje: 4 Pow.:Pow.: 118,85m2 Działka:354,00m2 Budynek: 4 Sprzedane | ||
| 4b | B | 0,1 | 4 | 118,85m2 | 256,00m2 | Ogród | 4 | Sprzedane | NR:Nr:4b Typ: B Piętro: 0,1 Pokoje: 4 Pow.:Pow.: 118,85m2 Działka:256,00m2 Budynek: 4 Sprzedane | ||
| 5 | 2 | 0,1 | 4 | 117,00m2 | 282,00m2 | Ogród | 5 | Dostępne | NR:Nr:5 Typ: 2 Piętro: 0,1 Pokoje: 4 Pow.:Pow.: 117,00m2 Działka:282,00m2 Budynek: 5 Dostępne | ||
| 6 | 2 | 0,1 | 4 | 117,00m2 | 192,00m2 | Ogród | 6 | Dostępne | NR:Nr:6 Typ: 2 Piętro: 0,1 Pokoje: 4 Pow.:Pow.: 117,00m2 Działka:192,00m2 Budynek: 6 Dostępne | ||
| 7 | 2 | 0,1 | 4 | 117,00m2 | 311,00m2 | Ogród | 7 | Dostępne | NR:Nr:7 Typ: 2 Piętro: 0,1 Pokoje: 4 Pow.:Pow.: 117,00m2 Działka:311,00m2 Budynek: 7 Dostępne | ||
| 8 | 2 | 0,1 | 4 | 117,00m2 | 186,00m2 | Ogród | 8 | Dostępne | NR:Nr:8 Typ: 2 Piętro: 0,1 Pokoje: 4 Pow.:Pow.: 117,00m2 Działka:186,00m2 Budynek: 8 Dostępne | ||
| 9 | 1 | 0,1 | 4 | 127,00m2 | 297,00m2 | Ogród | 9 | Sprzedane | NR:Nr:9 Typ: 1 Piętro: 0,1 Pokoje: 4 Pow.:Pow.: 127,00m2 Działka:297,00m2 Budynek: 9 Sprzedane | ||
| 10 | 1 | 0,1 | 4 | 127,00m2 | 218,00m2 | Ogród | 10 | Dostępne | NR:Nr:10 Typ: 1 Piętro: 0,1 Pokoje: 4 Pow.:Pow.: 127,00m2 Działka:218,00m2 Budynek: 10 Dostępne | ||
| 11 | 1 | 0,1 | 4 | 127,00m2 | 217,00m2 | Ogród | 11 | Sprzedane | NR:Nr:11 Typ: 1 Piętro: 0,1 Pokoje: 4 Pow.:Pow.: 127,00m2 Działka:217,00m2 Budynek: 11 Sprzedane | ||
| 12 | 1 | 0,1 | 4 | 127,00m2 | 283,00m2 | Ogród | 12 | Rezerwacja | NR:Nr:12 Typ: 1 Piętro: 0,1 Pokoje: 4 Pow.:Pow.: 127,00m2 Działka:283,00m2 Budynek: 12 Rezerwacja | ||
| 13 | 1 | 0,1 | 4 | 127,00m2 | 287,00m2 | Ogród | 13 | Rezerwacja | NR:Nr:13 Typ: 1 Piętro: 0,1 Pokoje: 4 Pow.:Pow.: 127,00m2 Działka:287,00m2 Budynek: 13 Rezerwacja | ||
| 14 | 1 | 0,1 | 4 | 127,00m2 | 213,00m2 | Ogród | 14 | Dostępne | NR:Nr:14 Typ: 1 Piętro: 0,1 Pokoje: 4 Pow.:Pow.: 127,00m2 Działka:213,00m2 Budynek: 14 Dostępne | ||
| 15 | 1 | 0,1 | 4 | 127,00m2 | 212,00m2 | Ogród | 15 | Dostępne | NR:Nr:15 Typ: 1 Piętro: 0,1 Pokoje: 4 Pow.:Pow.: 127,00m2 Działka:212,00m2 Budynek: 15 Dostępne | ||
| 16 | 1 | 0,1 | 4 | 127,00m2 | 306,00m2 | Ogród | 16 | Sprzedane | NR:Nr:16 Typ: 1 Piętro: 0,1 Pokoje: 4 Pow.:Pow.: 127,00m2 Działka:306,00m2 Budynek: 16 Sprzedane | ||
| 17 | 3 | 0,1 | 4 | 120,00m2 | 356,00m2 | Ogród | 17 | Rezerwacja | NR:Nr:17 Typ: 3 Piętro: 0,1 Pokoje: 4 Pow.:Pow.: 120,00m2 Działka:356,00m2 Budynek: 17 Rezerwacja | ||
| 18 | 3 | 0,1 | 4 | 120,00m2 | 165,00m2 | Ogród | 18 | Rezerwacja | NR:Nr:18 Typ: 3 Piętro: 0,1 Pokoje: 4 Pow.:Pow.: 120,00m2 Działka:165,00m2 Budynek: 18 Rezerwacja | ||
| 19 | 4 | 0,1 | 5 | 135,00m2 | 200,00m2 | Ogród | 19 | Dostępne | NR:Nr:19 Typ: 4 Piętro: 0,1 Pokoje: 5 Pow.:Pow.: 135,00m2 Działka:200,00m2 Budynek: 19 Dostępne | ||
| 20 | 4 | 0,1 | 4 | 135,00m2 | 200,00m2 | Ogród | 20 | Dostępne | NR:Nr:20 Typ: 4 Piętro: 0,1 Pokoje: 4 Pow.:Pow.: 135,00m2 Działka:200,00m2 Budynek: 20 Dostępne | ||
| 21 | 3 | 0,1 | 4 | 120,00m2 | 165,00m2 | Ogród | 21 | Dostępne | NR:Nr:21 Typ: 3 Piętro: 0,1 Pokoje: 4 Pow.:Pow.: 120,00m2 Działka:165,00m2 Budynek: 21 Dostępne | ||
| 22 | 3 | 0,1 | 4 | 120,00m2 | 265,00m2 | Ogród | 22 | Dostępne | NR:Nr:22 Typ: 3 Piętro: 0,1 Pokoje: 4 Pow.:Pow.: 120,00m2 Działka:265,00m2 Budynek: 22 Dostępne | ||
| 23 | 3 | 0,1 | 4 | 120,00m2 | 336,00m2 | Ogród | 23 | Sprzedane | NR:Nr:23 Typ: 3 Piętro: 0,1 Pokoje: 4 Pow.:Pow.: 120,00m2 Działka:336,00m2 Budynek: 23 Sprzedane | ||
| 24 | 3 | 0,1 | 4 | 120,00m2 | 170,00m2 | Ogród | 24 | Dostępne | NR:Nr:24 Typ: 3 Piętro: 0,1 Pokoje: 4 Pow.:Pow.: 120,00m2 Działka:170,00m2 Budynek: 24 Dostępne | ||
| 25 | 3 | 0,1 | 4 | 120,00m2 | 170,00m2 | Ogród | 25 | Dostępne | NR:Nr:25 Typ: 3 Piętro: 0,1 Pokoje: 4 Pow.:Pow.: 120,00m2 Działka:170,00m2 Budynek: 25 Dostępne | ||
| 26 | 3 | 0,1 | 4 | 120,00m2 | 336,00m2 | Ogród | 26 | Rezerwacja | NR:Nr:26 Typ: 3 Piętro: 0,1 Pokoje: 4 Pow.:Pow.: 120,00m2 Działka:336,00m2 Budynek: 26 Rezerwacja | ||
| 27 | 5 | 0,1 | 4 | 141,00m2 | 336,00m2 | Ogród | 27 | Dostępne | NR:Nr:27 Typ: 5 Piętro: 0,1 Pokoje: 4 Pow.:Pow.: 141,00m2 Działka:336,00m2 Budynek: 27 Dostępne | ||
| 28 | 5 | 0,1 | 4 | 141,00m2 | 336,00m2 | Ogród | 28 | Sprzedane | NR:Nr:28 Typ: 5 Piętro: 0,1 Pokoje: 4 Pow.:Pow.: 141,00m2 Działka:336,00m2 Budynek: 28 Sprzedane |
Miejsce inwestycji:
Od ponad 20 lat realizujemy inwestycje mieszkaniowe – od kameralnych osiedli po większe projekty wielorodzinne. W najbliższej okolicy zbudowaliśmy m.in. osiedla domów jednorodzinnych: Zielona Dolina, Góralska, Słoneczne oraz Apartamenty Słoneczne, a także Cisową Aleję – inwestycję bezpośrednio sąsiadującą ze Scandinavią.
Jesteśmy firmą rodzinną, w której łączymy doświadczenie z rynku nieruchomości z kompetencjami z obszaru inwestycji, finansów, architektury i marketingu. Jeden z kluczowych członków naszego zespołu jest historykiem sztuki, co pozwala nam projektować osiedla w sposób świadomy, czerpiąc inspiracje z najlepszych światowych realizacji i przekładając je na lokalny kontekst.
Działamy też jako generalny wykonawca naszych projektów i realizujemy całą inwestycję z wykorzystaniem własnego kapitału. Dzięki temu mamy nieporównywalnie większą kontrolę jakości na każdym etapie – od projektu, przez wykonawstwo, po wykończenie terenów wspólnych. Samofinansowanie zapewnia stabilność i pełną przewidywalność procesu budowlanego, a dla naszych klientów oznacza bezpieczeństwo inwestycji i pewność jej terminowego ukończenia – niezależnie od zmieniających się warunków rynkowych.
Naszym celem jest tworzenie miejsc do życia, które są estetyczne, trwałe i funkcjonalne – zgodnie z filozofią nowoczesnej, skandynawskiej prostoty.
Skupiamy się na budowaniu domów energooszczędnych z inteligentnym systemem zarządzania energią, co pozwala nam nie tylko dbać o środowisko ale również generować dodatkowe oszczędności energetyczne – nawet do 50% w stosunku do domów budowanych obecnie przez inne firmy. Budowy prowadzimy w oparciu wyłącznie o prywatny kapitał, a grunty na których realizujemy inwestycję są naszą własnością, co zapewnia maksymalne bezpieczeństwo zawarcia transakcji.












